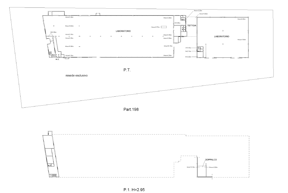
Descrizione Immobile
Capannone Industriale
Cambio di destinazione d’uso da industriale a commerciale, area di vendita richiedibile è una media distribuzione di vendita.
Dettagli riqualificazione area “La Rosa”
Il Comune di Terricciola ha pianificato una significativa riqualificazione di un’area con l’intento di trasformarla in un parco commerciale all’aperto. L’obiettivo è creare un polo attrattivo per i residenti di Terricciola, Peccioli e delle frazioni limitrofe, valorizzando la zona attraverso un intervento che combini funzionalità commerciale e fruibilità pubblica. Il progetto si inserisce in una visione strategica già condivisa da MD, che ha ottenuto risultati positivi in termini di fatturato.
Dettagli dell’operazione
L’immobile in vendita presenta le caratteristiche per un cambio di destinazione d’uso in commerciale al dettaglio, la superficie di vendita richiedibile tramite cambio di destinazione d’uso è c.a. 1.600 mq di vendita e una di c.a. 300 mq di vendita.
Possibili conduttori interessati
BRAND con possibile interesse
Diversi brand hanno già manifestato la propria volontà di affittare spazi commerciali di varie metrature. Tra le numerose manifestazioni di interesse, sono state individuate le tipologie merceologiche compatibili tra loro, al fine di rendere il parco commerciale, una volta completato, maggiormente redditizio sia per gli investitori sia per i conduttori, oltre che funzionale per gli utenti che ne fruiranno.
MERCEOLOGIE DI INTERESSE
- Elettronica
- Pet
- Cura della persona
- Cura della casa
- Alimentare
- Abbigliamento
- Supermercati
![]() |
ACE: | |
| Prestazione energetica (IPE): |
Certificazione energetica generata con ACE – Certificazione Energetica Plugin for wordpress.



