€920.000
Cod.3728
In vendita
Bagni 2
Area Giardino Area esterna di pertinenza m²
Area Immobile 575 m²
Balconi / m²
Garage /
Termo Autonomo
A.P.E. Da redigere
Vani
Descrizione Immobile
Vendesi Nuovo Complesso Industriale a Capalle
PER UTILIZZATORI
Scopri un’opportunità unica per la tua attività industriale o produttiva! Proponiamo in vendita un moderno complesso industriale di nuova costruzione a Capalle, alle porte di Prato, in una posizione strategica:
- 2.5 km dal casello autostradale Prato Est
- 4.5 km dal Macrolotto 2 di Prato
- 4,5 km dai Gigli
- 6 km dalla zona industriale di Calenzano
Caratteristiche principali:
-
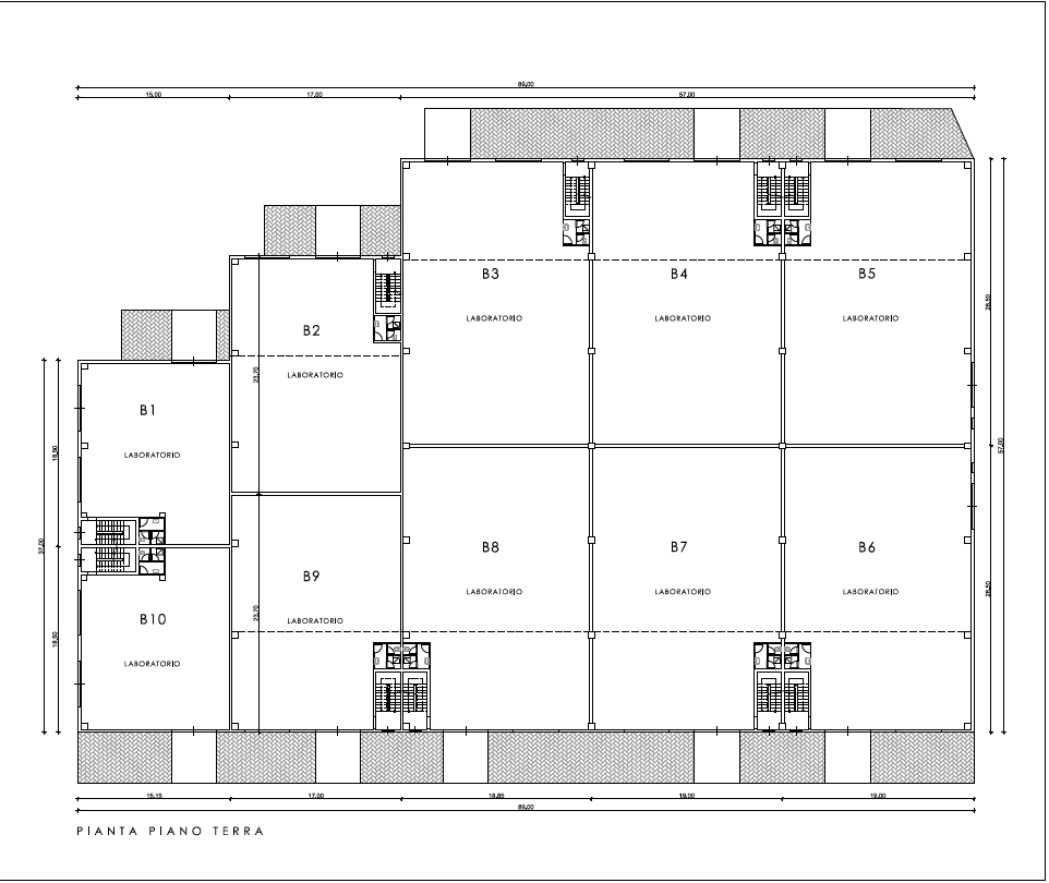
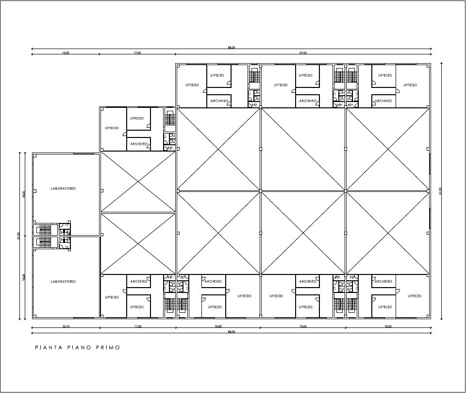
Superficie coperta totale: 6.000 mq
-
Suddivisione: 10 unità immobiliari di diverse metrature, ciascuna con ufficio al piano primo e spazi esterni di pertinenza
-
Flessibilità di acquisto: possibilità di acquistare l’intero lotto, singoli lotti o lotti accorpati
-
Esempio unità tipo: ca. 575 mq (inclusi uffici al piano primo) – prezzo su richiesta
-
Destinazione d’uso: ideale per attività industriali, produttive o logistiche
Il complesso si distingue per la sua posizione invidiabile, perfetta per chi cerca visibilità e collegamenti rapidi.
Perché scegliere questo nuovo complesso industriale?
La posizione invidiabile, la flessibilità delle unità e gli incentivi fiscali disponibili fanno di questo complesso la scelta ideale per imprese che vogliono crescere in un contesto competitivo e ben collegato. Contattaci per maggiori dettagli, prezzi o per visionare la documentazione di progetto!
PER INVESTITORI
Vantaggi per gli investitori:
-
Posizione strategica: ubicazione in un’area industriale consolidata, con eccellenti collegamenti autostradali e proximity a Firenze, garantendo alta domanda locativa e stabilità dei rendimenti.
-
Versatilità: struttura modulabile per locazioni multiple o utilizzo diretto, con potenziale per diversificazione del portafoglio.
-
Mercato in crescita: la Toscana nord-occidentale è un hub logistico e produttivo in espansione, con forte interesse da parte di PMI e grandi imprese.
Perché investire?
Questo complesso unisce un design moderno e funzionale a un’ubicazione premium, offrendo un’opportunità di investimento con basso rischio e alto potenziale di apprezzamento. La flessibilità delle unità e gli incentivi fiscali massimizzano il ROI, mentre la domanda crescente di spazi industriali in zona garantisce flussi di cassa stabili.
Contattaci per ricevere il dossier completo, informazioni sui prezzi o per organizzare un sopralluogo. Non perdere questa occasione di investire in un asset immobiliare di valore strategico!
(Nota per investitori e/o utilizzatori: per dettagli su incentivi e condizioni, si consiglia di consultare un esperto di finanza agevolata o il sito www.mimit.gov.it)
![]() |
ACE: | |
| Prestazione energetica (IPE): |
Certificazione energetica generata con ACE – Certificazione Energetica Plugin for wordpress.







